Privacy statement: Your privacy is very important to Us. Our company promises not to disclose your personal information to any external company with out your explicit permission.
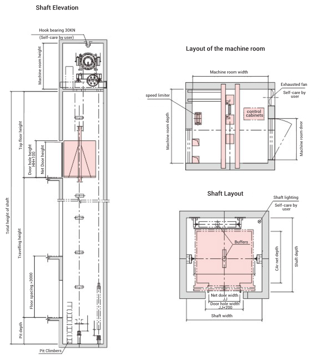
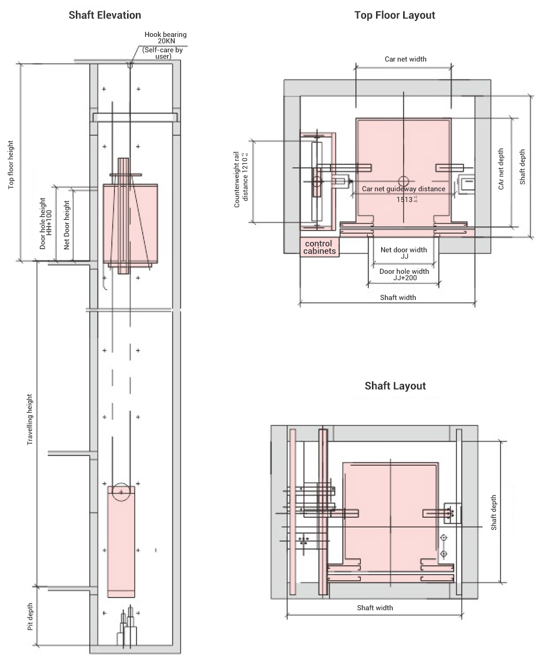
Die FEIYA -Serie kleiner Maschinenraum Passagieraufzug, nacheinander auf der Grundlage der modernen, hochgereiften Technologie, verbessert die Zuverlässigkeit und Flexibilität des Aufzugssystems und erkannte den Vorteil des realen Umweltschutzes und der Energieeinsparung. Die Fiat -Serie kleiner Maschinenraum Passagieraufzug im Vergleich zu in der Regel einen Computerraum, übernimmt das angemessene Bauauflay, die Raumfläche ist ebenfalls groß, rettete den Raumzimmer.

FEIYA Kein Maschinenraum Beifahrer Aufzugsprodukte mit der fortschrittlichsten dauerhaften Magneten-Synchron-Getriebe-Traktionstechnologie in Kombination mit intelligentem intelligentem Kontrollsystem mit vollemikrocomputerbasierten, so dass diese Produktreihe mit dem grünen Umweltschutz, effizientem energiesparendem, raumsparenden, sicheren und komfortablen Produkte wie Performance-Exzellenz. 




Privacy statement: Your privacy is very important to Us. Our company promises not to disclose your personal information to any external company with out your explicit permission.
Fill in more information so that we can get in touch with you faster
Privacy statement: Your privacy is very important to Us. Our company promises not to disclose your personal information to any external company with out your explicit permission.